百乐博

万融国际大厦102室租赁招标通告

宣布时间:2024-03-01浏览人数:

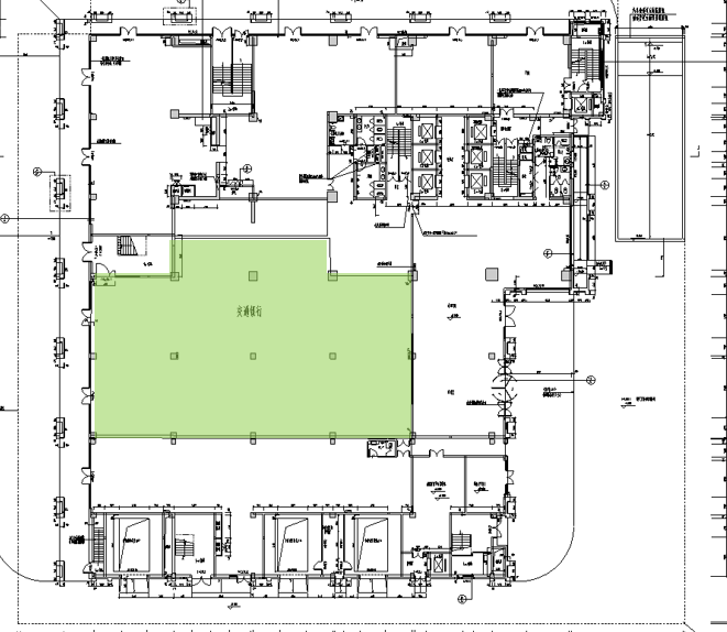
  苏州绿原城乡建设有限公司拟对位于苏州市姑苏区人民路3158号万融国际大厦102室举行果真竞标招租(详见招租位置示意图),,,102室修建面积约800㎡(详细区域招标以现场确以为准)

  万融国际大厦102室目招租位置示意图:

图片1.png

 

店面号 修建面积 楼层 谋划业态
万融国际大厦102室 约800㎡ 一层 金融

 

  一、报名条件:

  1、具有谋划相关业态履历并提供相关证实质料,,,在苏正当注册的自力法人资格的企业或小我私家;;;;

  2、企业:注册资金不低于50万元,,,注册谋划规模内包括此次竞标从事业态。。。。。财务和谋划状态优异,,,具备推行条约能力;;;;

  3、小我私家

  1)人行征信报告

  2)竞标人提供身份证原件、复印件,,,在苏栖身证实(本市户口本或暂时栖身证)。。。。。

  二、报名、现场勘查、答疑的方法和时间:

  报名、现场勘查、答疑的所在:苏州市姑苏区人民路3158号万融国际大厦B1物业效劳中心;;;; 咨询电话:15250013779 王女士

苏州绿原城乡建设有限公司

联系百乐博

地点:苏州市人民路3158号万融国际大厦

联系电话:0512-80820000 

接待微信扫码关注

【网站地图】【sitemap】